LOCAL EN CALLE VILLAROEL
TIPO DE OPERACIÓN
Alquiler
REFERENCIA
Localvillaroel
TIPO DE INMUEBLE
Local
DIMENSIONES
125 m²
PRECIO
1.200€/mes
DESCRIPCIÓN
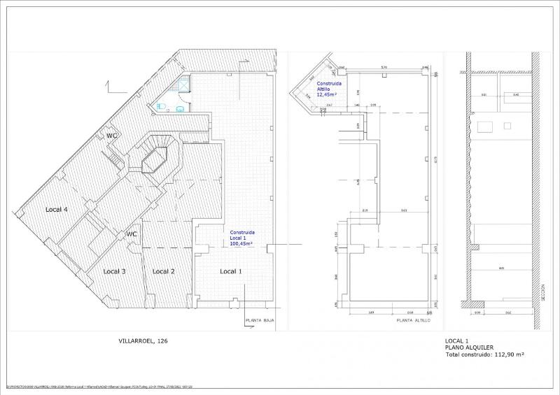
Local a reformar en alquiler situado en Calle Villarroel, 126, entre las calles Comte d'Urgell y Casanova, junto a la Avda. Roma y próximo a la Gran Vía de les Corts Catalanas. Se ubica en el barrio de L'Antiga Esquerra de l'Eixample, zona de la ciudad con una densidad de población residencial alta y que actualmente está sufriendo una mayor transformación creando más zonas verdes, zonas de bajas emisiones y grandes espacios para caminar. El local se encuentra a pie de calle, en la planta baja de edificio residencial y ocupa una superficie de 85m2 de forma diáfana (medidas aproximadas: 12,70m de largo por 6,54m de ancho y una altura de 4,40m. ) Dispone de 7m lineales de fachada con 2 aperturas de acceso a la calle y está equipado con persianas metálicas enrollables, suelo cerámico en planta baja, suelo de cemento en altillo y luminarias tipo fluorescentes. Tiene un aseo recién reformado con plato de ducha. Se encuentra en una zona dotada de todos los servicios, restaurantes, comercio de todo tipo, supermercados, etc. A escasos metros del mercado municipal El Ninot, de colegios, hospitales y zonas verdes. Muy bien comunicado por transporte público: Metro L5-Hospital Clínic, L1-Urgell; varios autobuses: 59, 63, 109, V11, H10 y Bicing. A 10 minutos a pie de la estación de Sants. Cuenta con buenos accesos por Gran Via de les Corts Catalanes y por Avda. Diagonal. Suministro de luz dado de alta. Suministro de agua dado de baja.
DISTRIBUCIÓN
A pie de calle
85 m² construidos, 83 m² útiles
Segunda mano/a reformar
Distribución diáfana
1 Baño/aseo
Construido en 1940
SERVICIOS
Restauración
Comercios
Metro
Autobuses
UBICACIÓN
Calle Villaroel 126 Barcelona























